top of page

LOGEMENTS  COLLECTIFS  ET  MAISON  DE  LA  MUSIQUE

Ville de Poissy

​

​

​

ETUDE DE FAISABILITE

​

Nature de l'opération

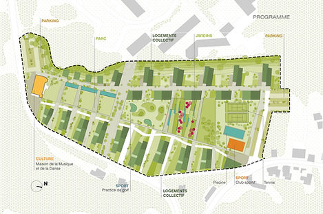
AMMENAGEMENT DU SITE CENTRE MAURICE CLERC

​

Programme

LOGEMENTS COLLECTIFS, MAISON DE LA MUSIQUE, PRACTICE DE GOLF ET CLUB SPORTIF

​

Surface

SHON 27 600m2

LOGO-OFFICIEL-BLANC-longue.png
  • Black Tumblr Icon
  • Black Facebook Icon
  • Black Instagram Icon
  • Black Houzz Icon
bottom of page